Srpske dobrovoljačke garde 57
Tehnika inzinjering Bijeljina

41.31m2 sdg-57-6

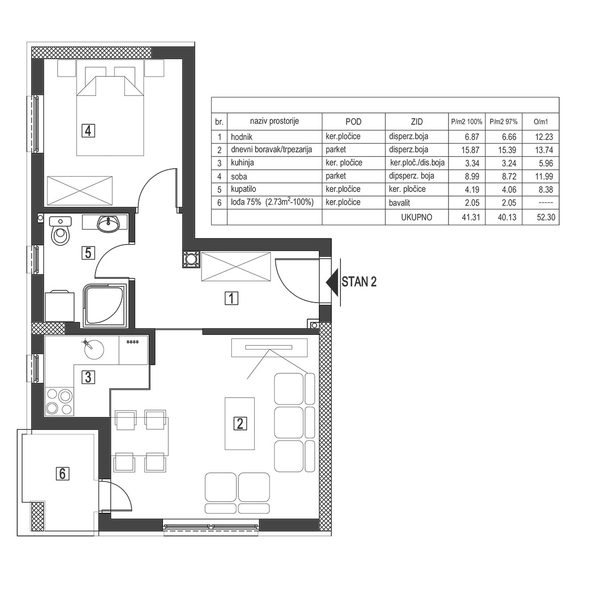
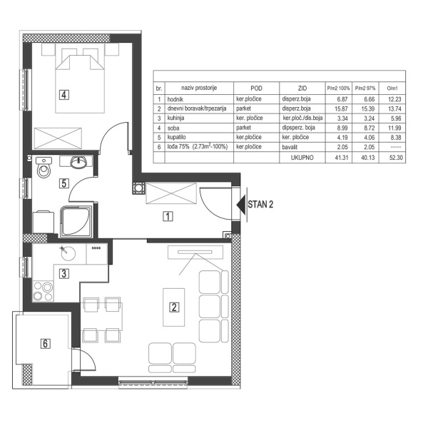
Br Prostorija Kvadratura 1 Predsoblje 6.87 m2 2 Dnevna soba/trpezarija 15.87 m2 3 Kuhinja 3.34 m2 4 Soba 8.99 m2 5 Kupatilo 4.19 m2 6 Lođa 2.05 m2   Ukupno 41.31m2   ...Pročitajte više
3D vizuelizacija ne odgovara stvarnom rasporedu prostorija.
Srpske dobrovoljačke garde 57

41.31m2

dvosoban
Dostupni spratovi
Nije dostupan
Rok završetka
31-05-2027
Besplatno

  • Struktura prostorija
Br Prostorija Kvadratura
1 Predsoblje 6.87 m2
2 Dnevna soba/trpezarija 15.87 m2
3 Kuhinja 3.34 m2
4 Soba 8.99 m2
5 Kupatilo 4.19 m2
6 Lođa 2.05 m2
  Ukupno 41.31m2
 
Karakteristike zgrade i materijali
  • Spratnost Po+P+5
  • Vanjska stolarija PVC petokomorna
  • Ulazna vrata sigurnosna
  • Unutrašnja vrata TIP "NOVOFORM"
  • Parket hrastov
  • Keramika I klase
  • Grijanje - toplotna pumpa
  • Fasada "Demit" termoizolacija d=10 cm
  • Lift iz podruma
  • Parking
  • Garaže
  • Video nadzor objekta
Fasada
GP Tehnika inžinjering Bijeljina
Powered by limun.co