Galac 13
Tehnika inzinjering Bijeljina

35.40m2 galac-13-3

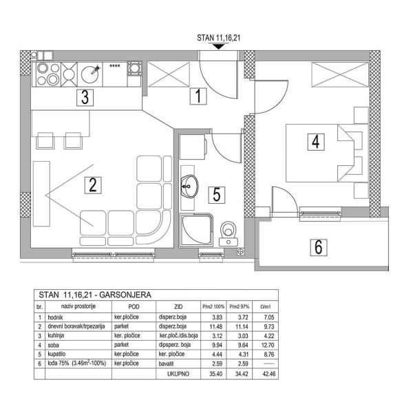
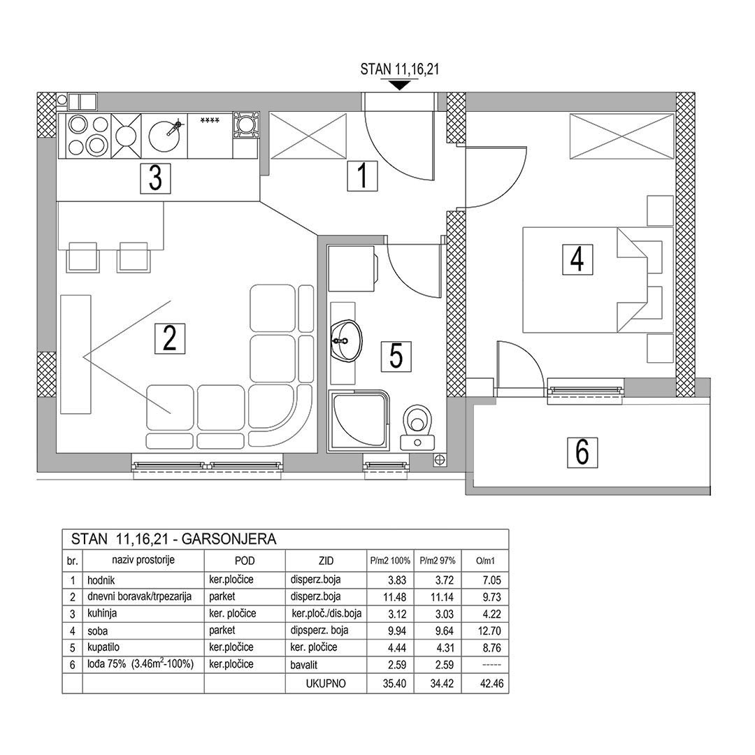
Br Prostorija Kvadratura 1 Predsoblje 3.83 m2 2 Dnevna soba/trpezarija 11.48 m2 3 Kuhinja 3.12 m2 4 Soba 9.94 m2 5 Kupatilo 4.44 m2 6 Lođa 2.59 m2   Ukupno 35.40 m2   ...Pročitajte više
3D vizuelizacija ne odgovara stvarnom rasporedu prostorija.
Galac 13

35.40m2

dvosoban
Dostupni spratovi
Nije dostupan
Rok završetka
30-05-2025
Besplatno

  • Struktura prostorija
Br Prostorija Kvadratura
1 Predsoblje 3.83 m2
2 Dnevna soba/trpezarija 11.48 m2
3 Kuhinja 3.12 m2
4 Soba 9.94 m2
5 Kupatilo 4.44 m2
6 Lođa 2.59 m2
  Ukupno 35.40 m2
 
Karakteristike zgrade i materijali
  • Spratnost Po+P+4
  • Vanjska stolarija PVC petokomorna
  • Ulazna vrata sigurnosna
  • Unutrašnja vrata TIP "NOVOFORM"
  • Parket hrastov
  • Keramika I klase
  • Grijanje - toplotna pumpa
  • Fasada "Demit" termoizolacija d=10 cm
  • Lift iz podruma
  • Parking
  • Garaže
  • Video nadzor objekta
Fasada
GP Tehnika inžinjering Bijeljina
Powered by limun.co