Stanovi
Tehnika inzinjering Bijeljina

32.08m2 geteova3-2

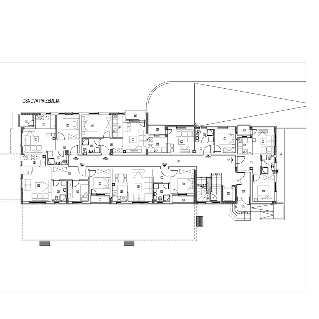
Br Prostorija Kvadratura 1 Hodnik 5.95 m2 2 Dnevna soba/trpezarija 8.47 m2 3 Kuhinja 3.75 m2 4 Soba 8.97 m2 5 Kupatilo 3.75 m2 6 Lođa 1.20 m2   Ukupno 32.08 m2   ...Pročitajte više
3D vizuelizacija ne odgovara stvarnom rasporedu prostorija.
Geteova 3

32.08m2

dvosoban
Dostupni spratovi
P
Rok završetka
31-05-2028
Besplatno

  • Struktura prostorija
Br Prostorija Kvadratura
1 Hodnik 5.95 m2
2 Dnevna soba/trpezarija 8.47 m2
3 Kuhinja 3.75 m2
4 Soba 8.97 m2
5 Kupatilo 3.75 m2
6 Lođa 1.20 m2
  Ukupno 32.08 m2
 
Karakteristike zgrade i materijali
  • Spratnost Po+P+6
  • Vanjska stolarija PVC petokomorna
  • Ulazna vrata sigurnosna
  • Unutrašnja vrata TIP "NOVOFORM"
  • Parket hrastov
  • Keramika I klase
  • Grijanje - toplotna pumpa
  • Fasada "Demit" termoizolacija d=10 cm
  • Lift iz podruma
  • Parking
  • Garaže
  • Video nadzor objekta
Fasada
PR
GP Tehnika inžinjering Bijeljina
Powered by limun.co