Stanovi
Tehnika inzinjering Bijeljina

60.19m2 sdg-57-10

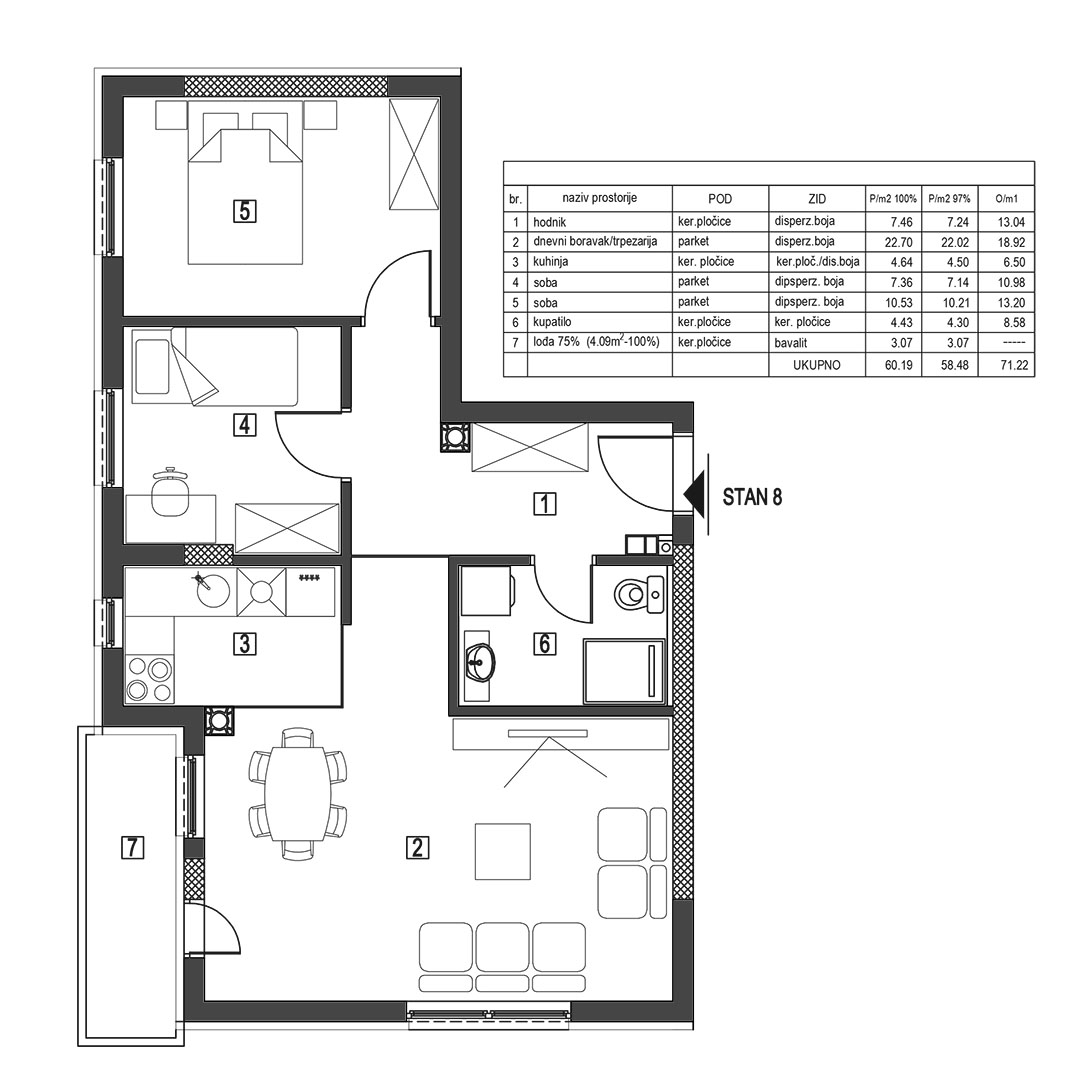
Br Prostorija Kvadratura 1 Predsoblje 7.46 m2 2 Dnevna soba/trpezarija 22.70 m2 3 Kuhinja 4.64 m2 4 Soba 7.36 m2 5 Soba 10.53 m2 6 Kupatilo 4.43 m2 7 Lođa 3.07 m2   Ukupno 60.19 m2   ...Pročitajte više
3D vizuelizacija ne odgovara stvarnom rasporedu prostorija.
Srpske dobrovoljačke garde 57

60.19m2

trosoban
Dostupni spratovi
IIIIVV
Rok završetka
31-05-2027
Besplatno

  • Struktura prostorija
Br Prostorija Kvadratura
1 Predsoblje 7.46 m2
2 Dnevna soba/trpezarija 22.70 m2
3 Kuhinja 4.64 m2
4 Soba 7.36 m2
5 Soba 10.53 m2
6 Kupatilo 4.43 m2
7 Lođa 3.07 m2
  Ukupno 60.19 m2
 
Karakteristike zgrade i materijali
  • Spratnost Po+P+5
  • Vanjska stolarija PVC petokomorna
  • Ulazna vrata sigurnosna
  • Unutrašnja vrata TIP "NOVOFORM"
  • Parket hrastov
  • Keramika I klase
  • Grijanje - toplotna pumpa
  • Fasada "Demit" termoizolacija d=10 cm
  • Lift iz podruma
  • Parking
  • Garaže
  • Video nadzor objekta
Fasada
I, II, IV, V
GP Tehnika inžinjering Bijeljina
Powered by limun.co