Stanovi
Tehnika inzinjering Bijeljina

214.94 lokal-milosaobilica-130

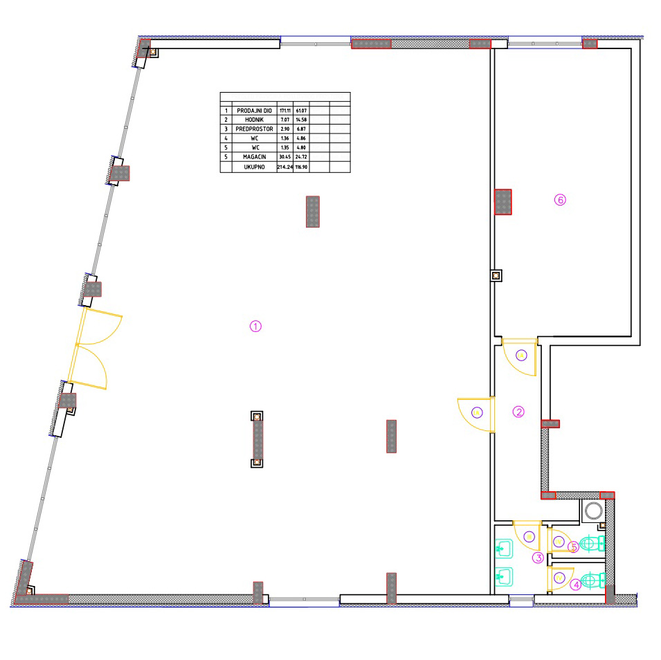
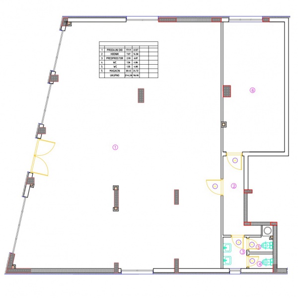
Br Prostorija Kvadratura 1 Poslovni prostor 171.11 m2 2 Hodnik 7.07 m2 3 Predprostor 2.90 m2 4 WC 1.36 m2 5 WC 1.35 m2 6 Magacin 30.45 m2   Ukupno 214.24 m2 . ...Pročitajte više
3D vizuelizacija ne odgovara stvarnom rasporedu prostorija.
Miloša Obilića 130

214.94

lokal
Dostupni spratovi
P
Rok završetka
ZAVRŠEN
Besplatno

  • Struktura prostorija
Br Prostorija Kvadratura
1 Poslovni prostor 171.11 m2
2 Hodnik 7.07 m2
3 Predprostor 2.90 m2
4 WC 1.36 m2
5 WC 1.35 m2
6 Magacin 30.45 m2
  Ukupno 214.24 m2
.
PR
GP Tehnika inžinjering Bijeljina
Powered by limun.co