Dušana Baranina 55
Tehnika inzinjering Bijeljina

49.96m2 dusanabaranina55-9

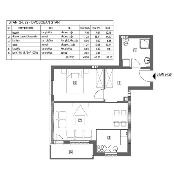
Br Prostorija Kvadratura 1 Predsoblje 7.91 m2 2 Dnevna soba/trpezarija 17.23 m2 3 Kuhinja 5.05 m2 4 Soba 11.27 m2 5 Kupatilo 5.66 m2 6 Lođa 2.84 m2   Ukupno 49.96 m2   ...Pročitajte više
3D vizuelizacija ne odgovara stvarnom rasporedu prostorija.
Dušana Baranina 55

49.96m2

dvosoban
Dostupni spratovi
VI
Rok završetka
31-07-2026
Besplatno

  • Struktura prostorija
Br Prostorija Kvadratura
1 Predsoblje 7.91 m2
2 Dnevna soba/trpezarija 17.23 m2
3 Kuhinja 5.05 m2
4 Soba 11.27 m2
5 Kupatilo 5.66 m2
6 Lođa 2.84 m2
  Ukupno 49.96 m2
 
Karakteristike zgrade i materijali
  • Spratnost Po+P+6
  • Vanjska stolarija PVC petokomorna
  • Ulazna vrata sigurnosna
  • Unutrašnja vrata TIP "NOVOFORM"
  • Parket hrastov
  • Keramika I klase
  • Grijanje - toplotna pumpa
  • Fasada "Demit" termoizolacija d=10 cm
  • Lift iz podruma
  • Parking
  • Garaže
  • Video nadzor objekta
Fasada
VI
GP Tehnika inžinjering Bijeljina
Powered by limun.co